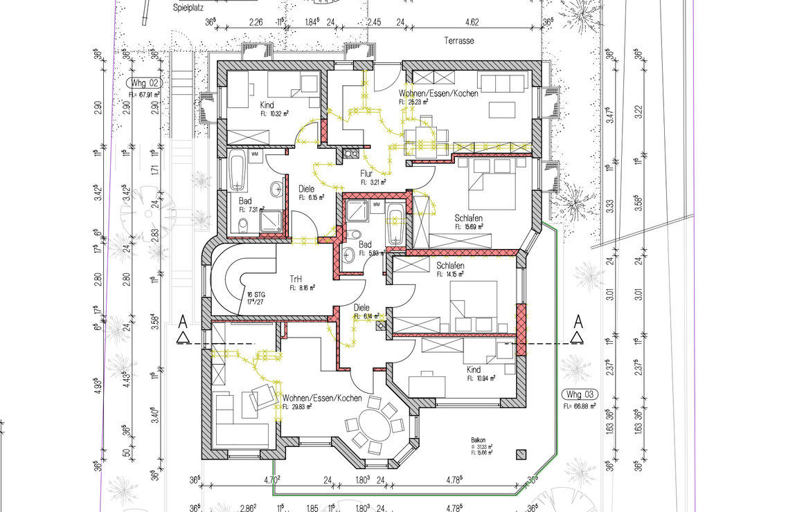
Sanierung und Neubau
Sanierung eines Einfamilienhauses und Umbau zu 5 Wohneinheiten

Auftraggeber
Privat
Projektplanung
Osterried Projektentwicklung
Leistungen
schlüsselfertige Projekterstellung
- wirtschaftlich effiziente Kernsanierung eines Einfamilienhauses
- Umbau des Einfamilienhauses zu einem MFH mit 5 Wohneinheiten
- Optimierung des Bauvolumens
- Wechsel der Energieversorgung von Heizöl zu Fernwärme










